Retail units restoration & reinstatement – Full Planning Permission Granted April 2021.

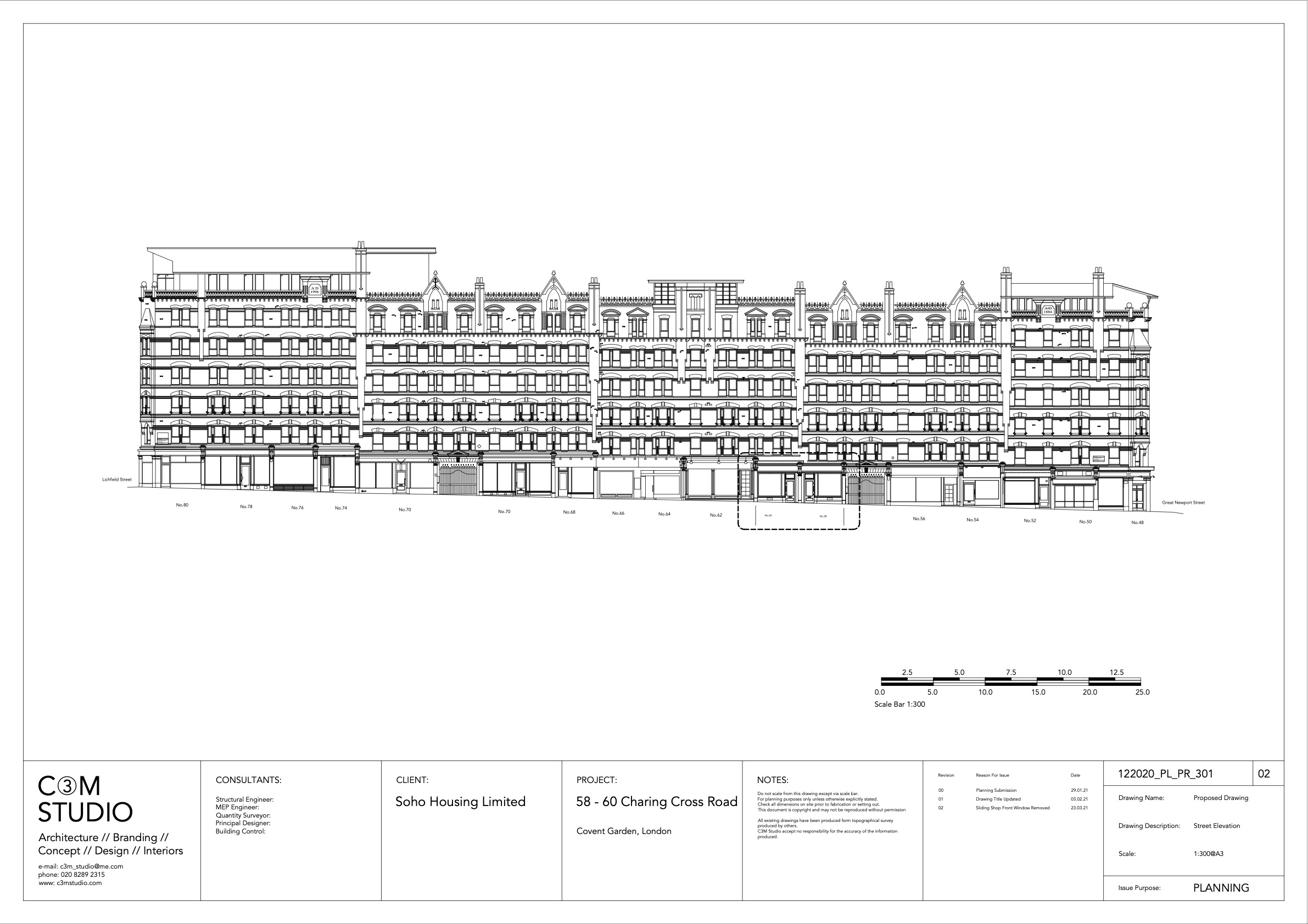
C3M studio are delighted to have been granted ‘full planning permission’, by Westminster City Council, for our first retail unit subdivision and restoration, located on Charing Cross Road, in the historic parade of independent retailers in the Sandringham Mansions Buildings.
Retail, as many industries, have been hit extremely hard following the imposition of being closed down and opened up, on many differing tier restrictions. Reacting to the change since lock down restrictions were imposed in March 2020 became a focus for the early discussions between C3M Studio And Soho Housing Commercial team.

The concept and strategy is to return all units back to their original size, reinstating the small independent units for the #ShopSmall independent retailers.
In this market appealing to ‘pop-up units‘ that essentially ‘plug in and play‘ ready’, for all eventualities, that can be thrust upon the small business owners during these changing and challenging restrictive times.

The application ”58-60 CXR”, is the 1st in the overall strategy, submitted at the end of January, following the consultation period, then liaising with Westminster Planning Authority regarding the detail, the permission. was then granted within the statutory 8 weeks.



